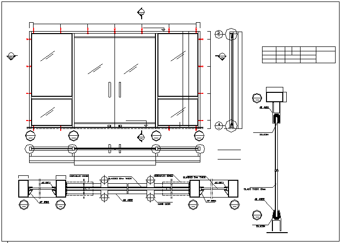
Door installation with side single windows dwg file
Description
Door installation with side single windows dwg file.
Door installation with side single windows that includes a detailed view of wooden frame, measures, cuts, grill, joints, screw and bolts, door design, door view, door handle, door lock and much more of door installation details.
Uploaded by:

