Three legged tower details with single line diagram dwg file
Description
Three legged tower details with single line diagram dwg file.
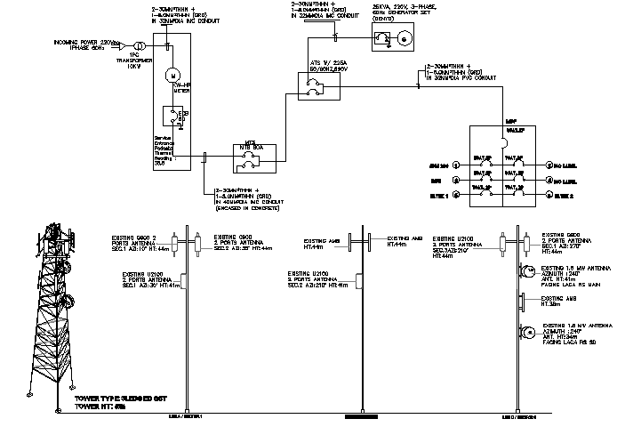
Three legged tower details with single line diagram that includes a detailed view of existing port panel antenna, existing two ports panel antenna, cable details, cable, genset, fuel tank, measures voltage, power one, vacant, spare, label, exhausted fan, light, incoming power phase, conduct and much more of tower details.
File Type:
DWG
File Size:
293 KB
Category::
Electrical
Sub Category::
Architecture Electrical Plans
type:
Gold
Uploaded by:

