LOGIN
HOME
CATEGORIES
UPLOAD FILE
PRICING
HOUSE PLAN
ABOUT US
CONTACT US
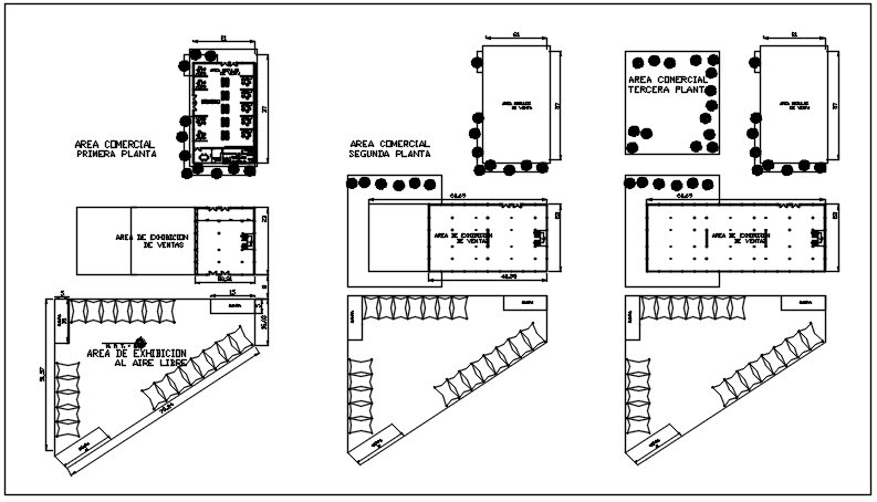
Garden area detail dwg file
Home
Categories
Landscape
Public Park Landscape Design
Garden area detail dwg file
Uploaded by:
Dhara
View Profile
View Profile
Description
Garden area detail dwg file, Garden area detail with dimension detail, naming detail, tree detail, bench detail, triangle shape garden detail, etc.
File Type:
DWG
File Size:
1.8 MB
Category::
Landscape
Sub Category::
Public Park Landscape Design
type:
Gold
Uploaded by:
Dhara
View Profile
Download
Add to libary
find Latest
Related
Files