Flat House AutoCAD DWG Plan with Floor Layout, Section, and Elevation
Description
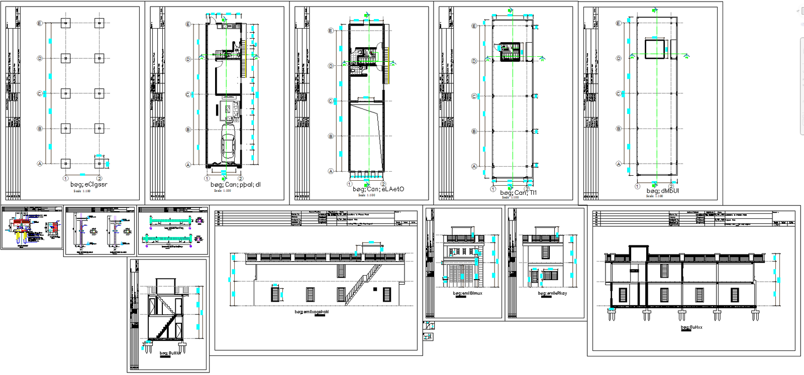
This Flat House AutoCAD DWG file offers a complete architectural design layout, including ground floor, first floor, terrace, and foundation plans with accurate dimensions. The drawing highlights detailed column placements, beam arrangements, and slab reinforcements, making it ideal for construction planning. Elevations and sectional views illustrate the structure’s vertical alignment, floor connectivity, and roof detailing for better design visualization.
Each floor plan is drawn with clear measurement annotations, providing a functional space division for living, dining, bedroom, and utility areas. The staircase section and building elevations reflect the symmetry and structural strength of the flat house. Additionally, foundation and beam layout diagrams support engineers and designers in implementing precise construction workflows.
This editable AutoCAD DWG format file is highly useful for architects, civil engineers, and builders involved in residential flat projects. It ensures compatibility with Revit, SketchUp, and 3ds Max, offering flexibility for visualization, modification, or detailed modeling. This drawing serves as a valuable design resource for anyone looking to construct or present modern flat-style housing efficiently.
Uploaded by:
long
sovandara
