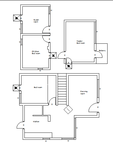
Architecture layout plan details of single family house dwg file
Description
Architecture layout plan details of single family house dwg file.
Architecture layout plan details of single family house that includes a detailed view of main entry door, family hall, kitchen, dining area, toilet, bedroom, bar, rack, indoor furniture, laundry area , bathroom, passage and much more of hose layout plan details.
Uploaded by:

