Single family house plumbing details dwg file
Description
Single family house plumbing details dwg file.
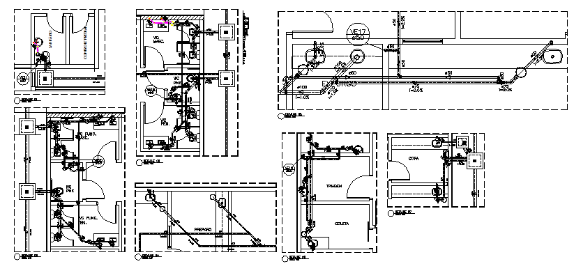
Single family house plumbing details that includes a detailed view of pipe line details, joints, cuts, measures, water pipe line details passing through, sanitary installation details and much more of house plumbing details.
File Type:
DWG
File Size:
4.3 MB
Category::
Dwg Cad Blocks
Sub Category::
Autocad Plumbing Fixture Blocks
type:
Gold
Uploaded by:
