Water tank location architecture project dwg file
Description
Water tank location architecture project dwg file.
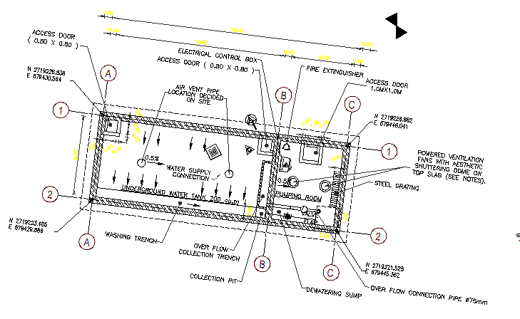
Water tank location architecture project powered ventilation fans, steel grating, top slab, over flow connection pipe, watering sum, collection pit, washing trench, under ground water tank, water supply connection, electric control box and much more of water tank details.
Uploaded by:

