Marriage Hall AutoCAD DWG with Dining, Kitchen, and Parking Plan

Marriage Hall AutoCAD DWG with Dining, Kitchen, and Parking Plan
Profile

Uploaded by:

chokkalingam

mathuvappan

Description

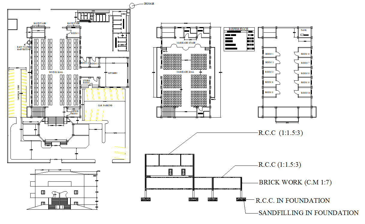
This AutoCAD DWG drawing of a marriage hall provides a fully detailed architectural layout that includes a spacious dining hall, marriage stage, kitchen, and car parking area. The plan clearly outlines the arrangement of seating rows, service areas, and washrooms, along with room allocations and a structural section view. Designed with precision, this drawing ensures smooth circulation and space efficiency, making it suitable for both wedding venues and banquet hall construction projects.

The foundation and RCC detailing are presented with proper labeling, indicating concrete mix ratios (1:1.5:3) and brickwork proportions for structural stability. The drawing also features a clear front elevation and sectional view for a realistic representation of the overall building structure. This DWG file serves as a complete reference for architects, civil engineers, and contractors working on hospitality and event infrastructure projects.

Professionals can easily edit, scale, or customize the layout for hall dimensions, seating arrangements, and parking extensions. This plan is ideal for those designing public gathering halls, banquet spaces, or large community event centers using AutoCAD and related design tools.

Profile

Uploaded by:

chokkalingam

mathuvappan

find Latest

Related Files