Urban school architecture project details dwg file
Description
Urban school architecture project details dwg file.
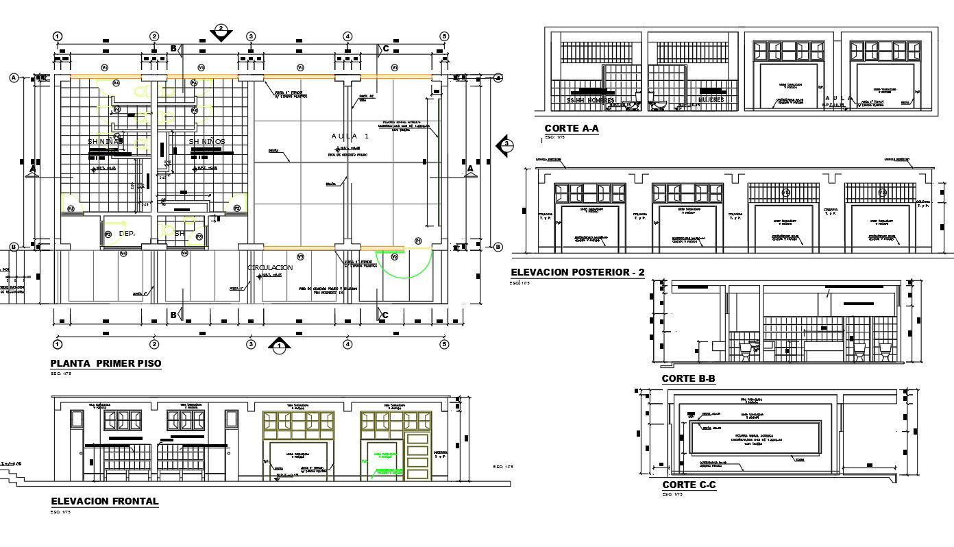
Urban school architecture project details that includes a detailed view of front elevation, back elevation, front side section, back section, staircase view, doors and windows view, roof view, entry lobby, class rooms, library, laboratory, computer lab, staff room, head office and much more of school details.
Uploaded by:

