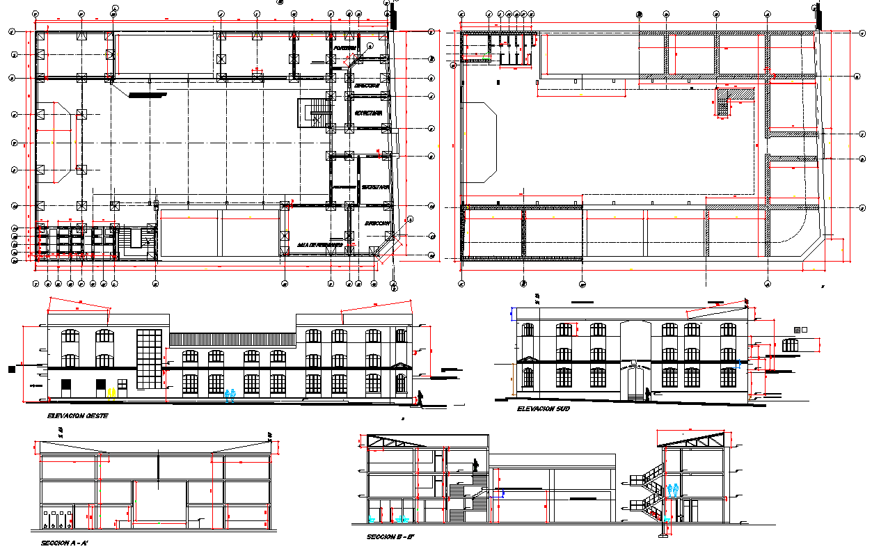
Educational unit floor plan layout details dwg file
Description
Educational unit floor plan layout details dwg file.
Educational unit floor plan layout details that includes a detailed view of ground floor, first floor etc with main entry gate, car parking area, main entry lobby, play ground, staff room, admin office, cultural hall, class rooms, head office, conference room, meeting room, library, laboratory, computer room, girls and boys toilet, staff toilets, kitchen, dining area, canteen and much more of educational unit details.
Uploaded by:

