Detailed Roof and Masonry Wall Connection CAD Drawing File Design

Detailed Roof and Masonry Wall Connection CAD Drawing File Design
Profile

Uploaded by:

john

kelly

Description

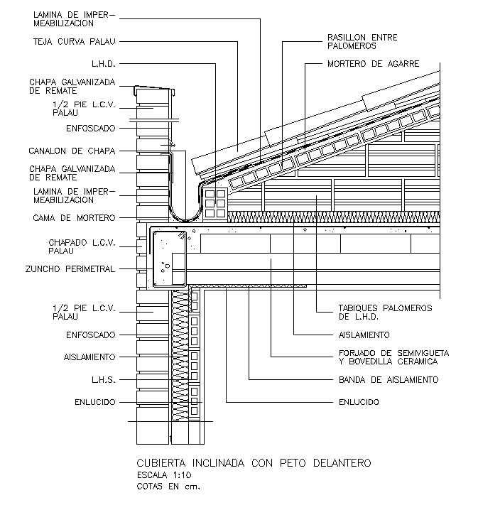
This AutoCAD DWG file presents a complete construction detail of a roof and brick wall masonry junction with insulation and waterproofing layers. The sectional drawing includes key construction components such as teja curva Palau (curved roof tiles), aislamiento (insulation), enfoscado (plaster finish), lamina de impermeabilización (waterproof membrane), and chapa galvanizada de remate (metal capping). Each layer is precisely scaled at 1:10 to ensure professional accuracy and clarity.

The drawing also features masonry details like 1/2 pie L.C.V. Palau brickwork, zuncho perimetral (reinforced concrete beam), and forjado de semivigueta y bovedilla cerámica (beam and hollow block floor system). It visually defines the connection between the roof structure and wall insulation zone, ensuring correct drainage and moisture protection. This DWG file is ideal for architects, civil engineers, and designers who require technical reference for roof-to-wall construction. The layout can be customized for residential or commercial projects using AutoCAD, Revit, or similar CAD software, offering a reliable reference for precise architectural detailing and thermal protection design.

Profile

Uploaded by:

john

kelly

find Latest

Related Files