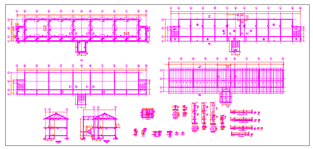
Primary school structural details with cut sections dwg file
Description
Primary school structural details with cut sections dwg file.
Primary school structural details with cut sections that includes a detailed view of foundation plan of column and beam, foundation plan of footings, roof construction, wall construction and much more of construction details.
Uploaded by:

