Flood zone college construction details dwg file
Description
Flood zone college construction details dwg file.
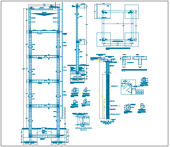
Flood zone college construction details with column construction, foundation plan, beam construction, concrete base floor, measures, cuts, pillars, wall construction and much more of of college details.
Uploaded by:
