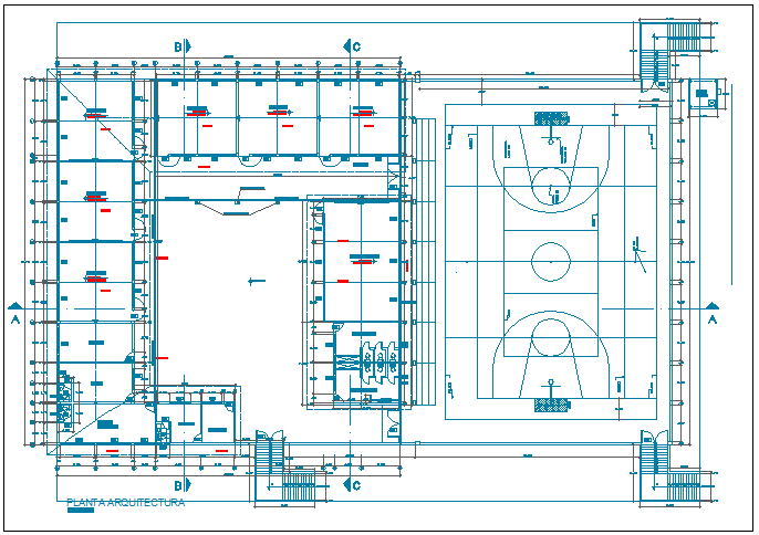
Collage architectural plan with food zone dwg file
Description
Collage architectural plan with food zone dwg file in plan with area distribution and view of classroom view,director office,washing area and computer room,door and window view and food zone area with necessary dimension.
Uploaded by:

