LOGIN
HOME
CATEGORIES
UPLOAD FILE
PRICING
HOUSE PLAN
ABOUT US
CONTACT US
Working plan detail dwg file
Home
Categories
Details
Construction Details
Working plan detail dwg file
Uploaded by:
Dhara
View Profile
View Profile
Description
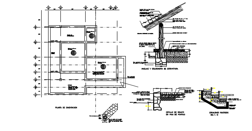
Working plan detail dwg file, Working plan detail with dimension detail, naming detail, stair elevation detail, wall section detail, column detail, hidden line detail, etc.
File Type:
DWG
File Size:
492 KB
Category::
Details
Sub Category::
Construction Details
type:
Gold
Uploaded by:
Dhara
View Profile
Download
Add to libary
find Latest
Related
Files