Steel structural plan and detail view of education center dwg file
Description
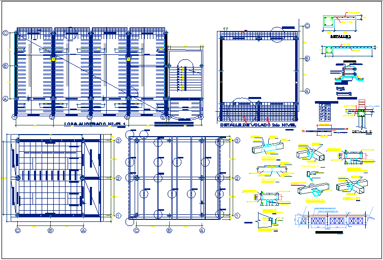
Steel structural plan and detail view of education center dwg file in plan with view of
wall and column and steel structure with square tube view and its detail view with necessary dimension and detail.
Uploaded by:

