School classroom plan with architectural,foundation and electrical plan view dwg file
Description
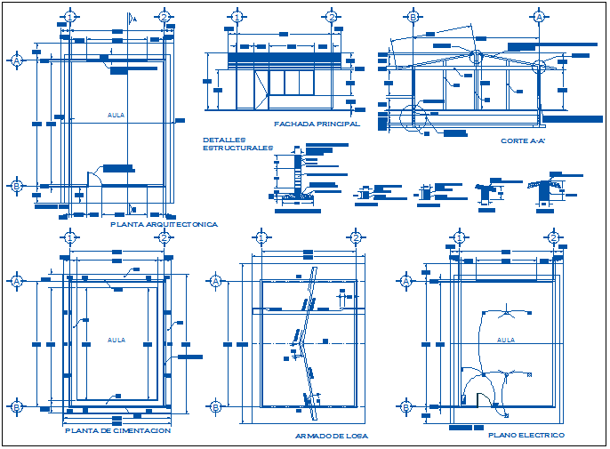
School classroom plan with architectural,foundation and electrical plan view dwg file
in plan of architect with area distribution and classroom view and necessary dimension and plan of foundation and electrical plan.
Uploaded by:

