LOGIN
HOME
CATEGORIES
UPLOAD FILE
PRICING
HOUSE PLAN
ABOUT US
CONTACT US
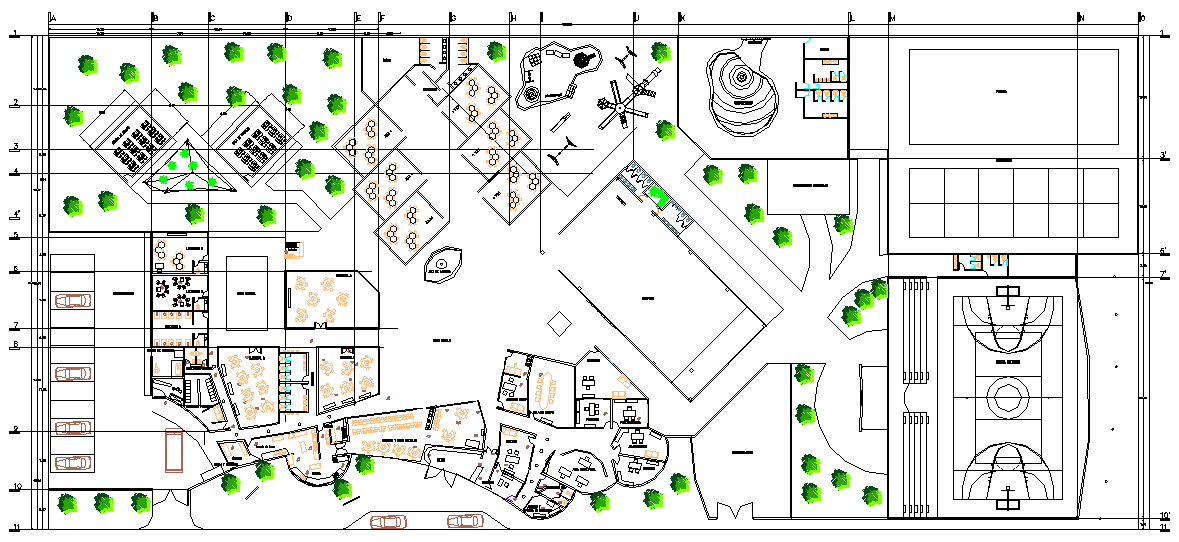
Layout plan of a school dwg file
Home
Categories
Architecture
School & Hostel
Layout plan of a school dwg file
Uploaded by:
Dipika
View Profile
View Profile
Description
Layout plan of a school dwg file,there is all classroom detail, landscaping detail, furniture arrangement in auto cad format
File Type:
DWG
File Size:
975 KB
Category::
Architecture
Sub Category::
School & Hostel
type:
Free
Uploaded by:
Dipika
View Profile
Download
Add to libary
find Latest
Related
Files