Classroom Electrical Installation Layout in DWG File
Description
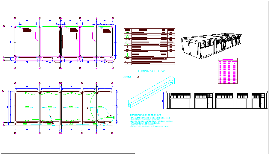
Installation of electrical with amplify better of classroom dwg file in plan with area distribution and view of wall with electrical line view with its installation with electrical legend view and
necessary dimension.
File Type:
3d max
File Size:
417 KB
Category::
Electrical
Sub Category::
Architecture Electrical Plans
type:
Gold
Uploaded by:

