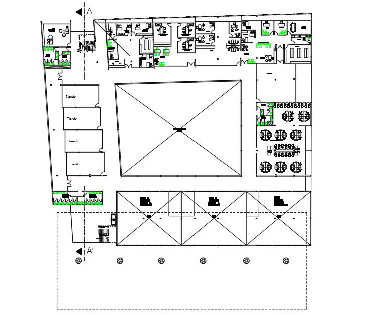
School building architecture layout plan details dwg file
Description
School building architecture layout plan details dwg file.
School building architecture layout plan details that includes a detailed view of main entry gate, car parking view, tree view, sports ground, classrooms, conference hall, meeting room, head office, toilets for staff, toilets for students, lobby, passage, canteen, kitchen, staircase, kids kinder garden, classrooms, computer lab, library, cultural hall view and much more of school details.
Uploaded by:

