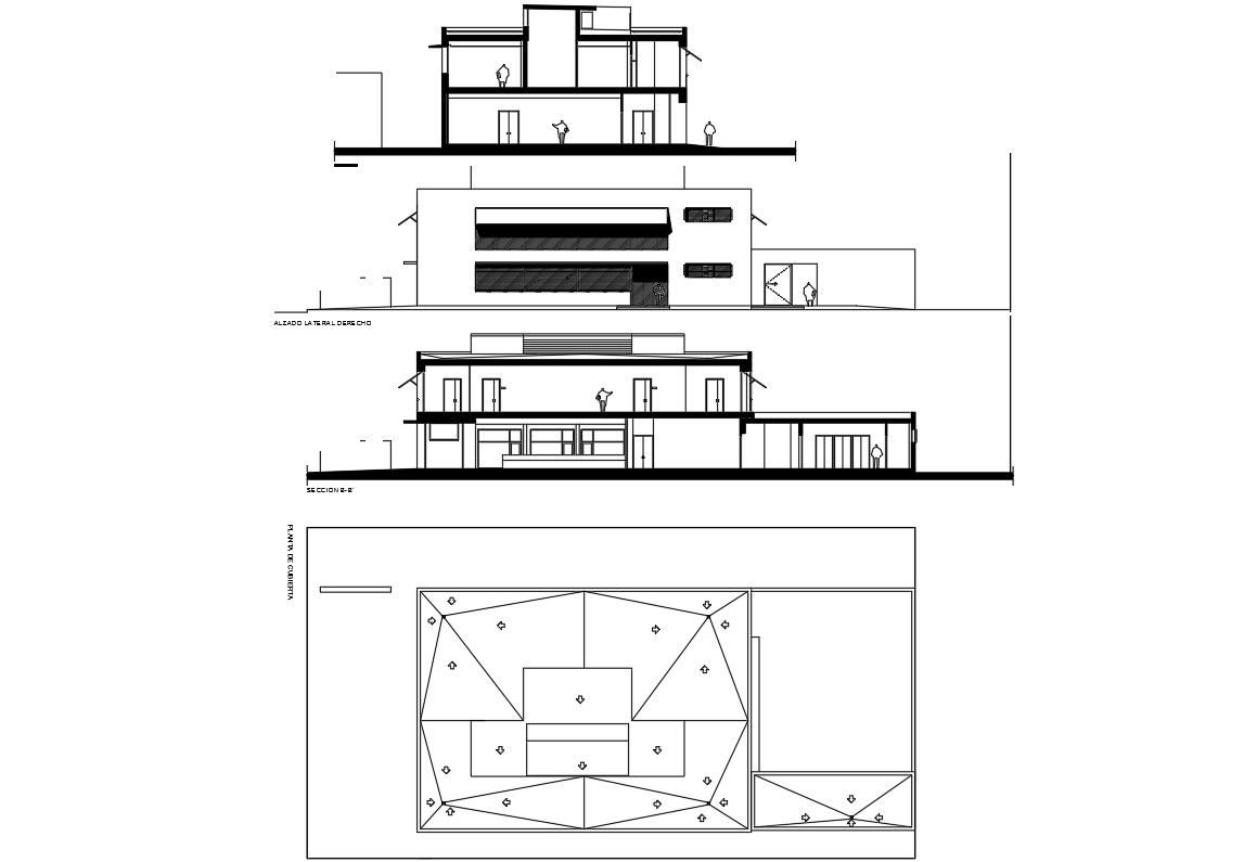
Educational work shop building architecture project details dwg file
Description
Educational work shop building architecture project details dwg file.
Educational work shop building architecture project details that includes a detailed view of front elevation, back elevation view, full sectional view, doors and windows view, staircase view, balcony view, terrace view, structure details and much more of work shop details.
Uploaded by:

