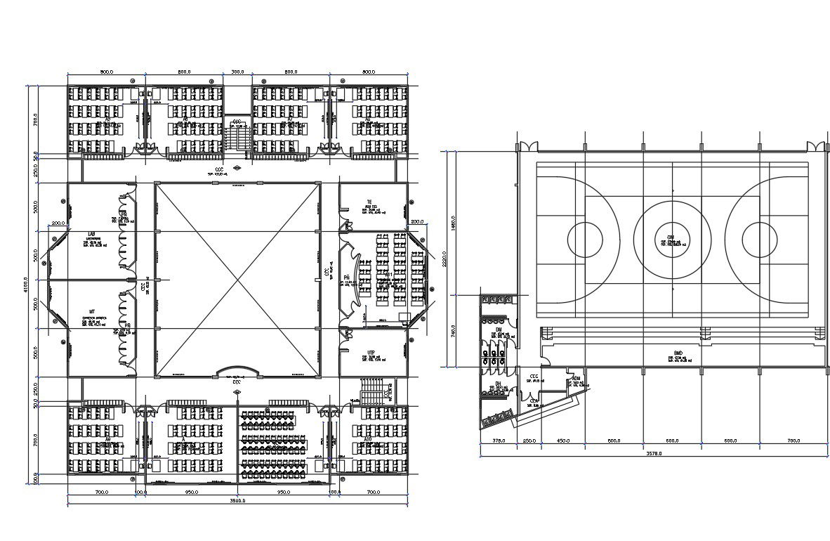
School structural layout plan details with sports ground dwg file
Description
School structural layout plan details with sports ground dwg file.
School structural layout plan details with sports ground that includes a detailed view of sports ground pitch, play area, sanitary installation of sports ground, main entry gate, classrooms, conference hall, meeting room, head office, toilets for staff, toilets for students, lobby, passage, canteen, kitchen, staircase, computer lab, library, cultural hall view and much more of school details.
Uploaded by:

