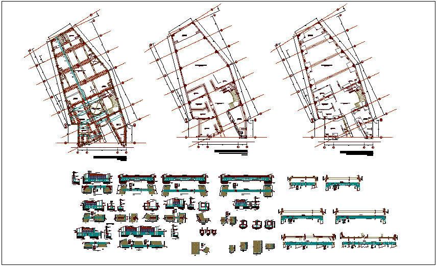
Structural view with floor plan and detail of community center dwg file
Description
Structural view with floor plan and detail of community center dwg file in first floor plan with
view of area distribution,wall view,column view,wall support,door and window view,detail view
of different column with second and third floor plan with necessary dimension.
Uploaded by:

