Modern Shopping Center Architecture Plan with Measured Layouts
Description
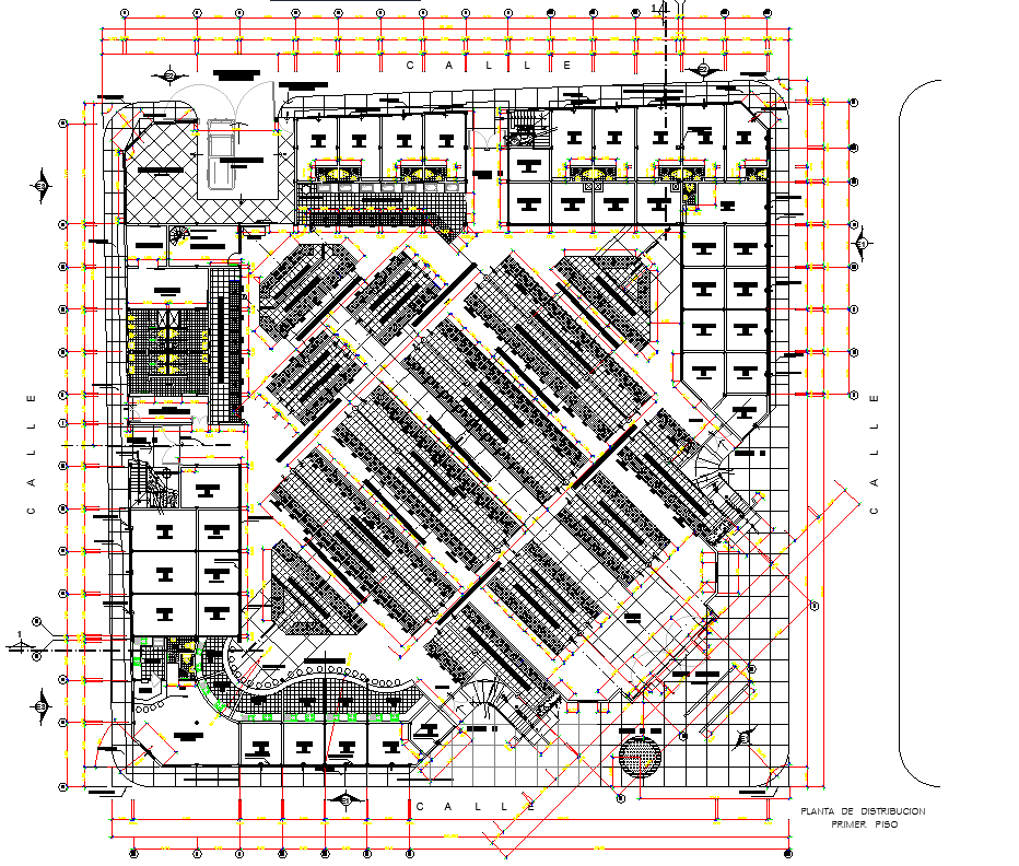
This detailed shopping center design DWG file provides a complete architectural layout, including a fully measured site plan, internal zoning, shop blocks, anchor store areas, parking layouts, pedestrian circulation, and structural grid references. The drawing features a well-defined commercial corridor arrangement, emergency exit routes, loading and unloading bays, administrative zones, storage areas, and service access points. Multiple elevation drawings and fully dimensioned sections are included, showcasing façade treatments, canopy structures, roof profiles, ventilation shafts, and column placements for accurate construction planning. Furniture layout for retail stalls, kiosks, food court seating, and customer waiting zones also appears clearly in the plan.
Additional details include escalator and staircase placement, restroom blocks, mechanical rooms, and electrical panel zones, ensuring smooth planning and execution of building services. Landscape pockets, boundary details, entrance pathways, and vehicle movement directions are also illustrated to support site development. This drawing is ideal for architects, civil engineers, and interior designers looking to reference a complete shopping center concept, enhance their presentations, or integrate professional DWG components into their commercial building projects. It serves as a reliable resource for improving design workflow and developing high-quality retail architecture.

Uploaded by:
Harriet
Burrows

