Government building of community home architectural plan with door and window mounting plan dwg file
Description
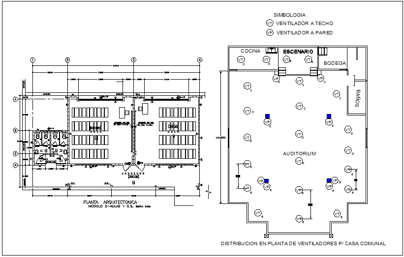
Government building of community home architectural plan with door and window mounting plan dwg file in architectural plan with view of area distribution,entry way,classroom view,wall
view,runner and washing area view and door and window mounting plan with necessary dimension.
Uploaded by:

