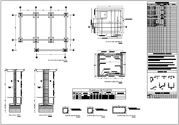
Foundation plan with construction detail of community center dwg file
Description
Foundation plan with construction detail of community center dwg file in plan with view of area distribution and wall and column foundation view with detail of column with different column
view with necessary dimension.
Uploaded by:

