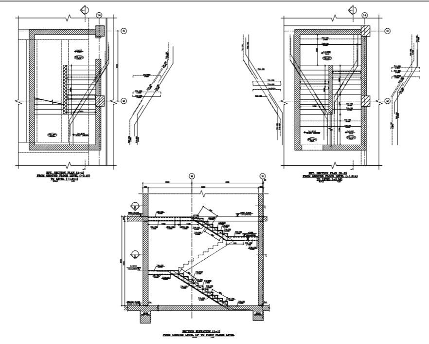
stairs and reinforcement structure detail of building
Description
structure detail of stairs ,
plans and reinforcement of a building
reinforcement detail of trade and riser including dia of bars and size
structure working plan with all measurements and levels detail
details of the plan and sectional elevation with section line
File Type:
File Size:
693 KB
Category::
Structure
Sub Category::
Section Plan CAD Blocks & DWG Drawing Models
type:
Free
Uploaded by:

