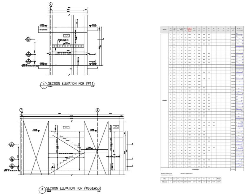
structural detail plan with section and elevation .
Description
structural detail plan with section and elevation, coupling beam detail,
detail description of a number of bar and detail.
working plan and detail of reinforcement, column and beam detail. shown centre line and section line.
Uploaded by:
