Detail staircase Dwg file
Description
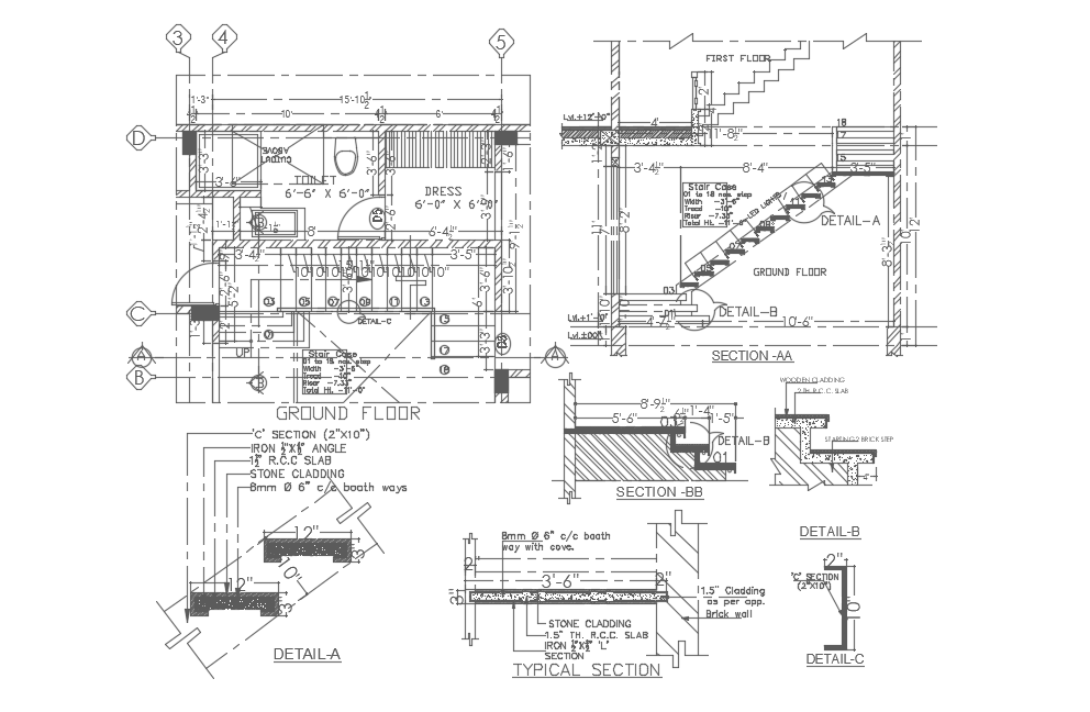
Detail staircase layout plan Dwg file. Structure Detail, Construction Details, of Detail staircase Plan that includes wall construction, doors and window elevation, column and beam details, raw material used details, stair cases, and much more of Detail staircase plan.
Uploaded by:
