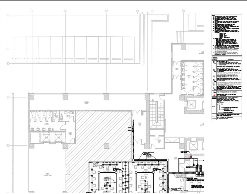
corporatel building , Power layout of with all description.
Description
corporate building, Power layout of with all description. Detail of legends and symbol description. Size and measurement detail of cable trunking and compartments. Detail of branch breaker. Working plan includes all measurements and levels.
Uploaded by:

