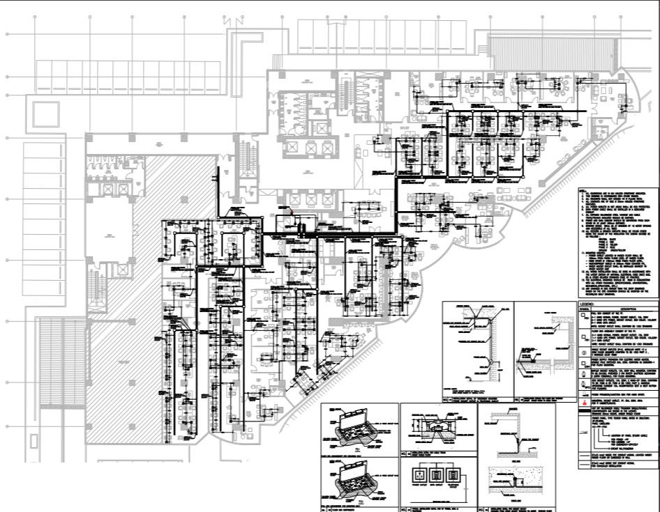
Power layout of commercial building with all detail and description
Description
Power layout of commercial building with all detail and description . Layout including installation detail of recessed mounted power socket and telephone outlet, floor box arrangement, installation detail for floor box through under raised floor to cable trunk. Typical detail for of data, power and telephone, installation detail for socket outlet. detail of legends and symbol description.
Uploaded by:

