Firefighting layout of corporate building in detail
Description
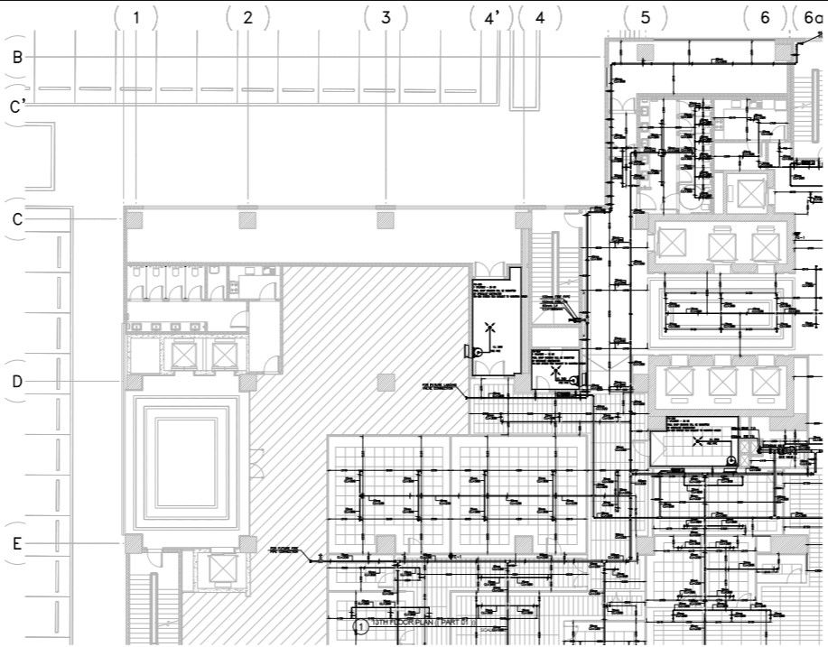
Firefighting layout of corporate building in detail. Includes fire pipe, sprinkler and levels , gate valve and main valve connection detail in whole building. Including all measurements and working plan detail.
Uploaded by:

