Power layout of building
Description
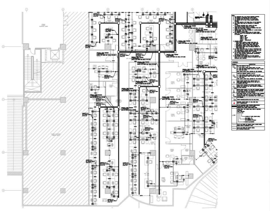
Power layout of building. Detail of single socket detail, double sockets detail, floor box assembly, power supply provision for electric water heater, power supply provision and junction for the hand dryer. Power panel and labeling .it is with all measurements and levels detail with detail of legend description and legend also
Uploaded by:

