IP system layout details and description
Description
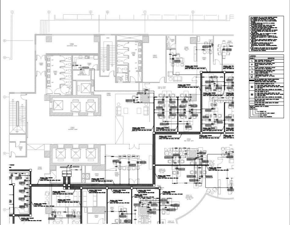
IP system layout details and description. Wall mounted and floor mounted telephone outlet detail. Communication cabinet 42 u with patch panels of 48 ports. detail description and detail of legends and symbol with height, diameter and levels.
Uploaded by:

