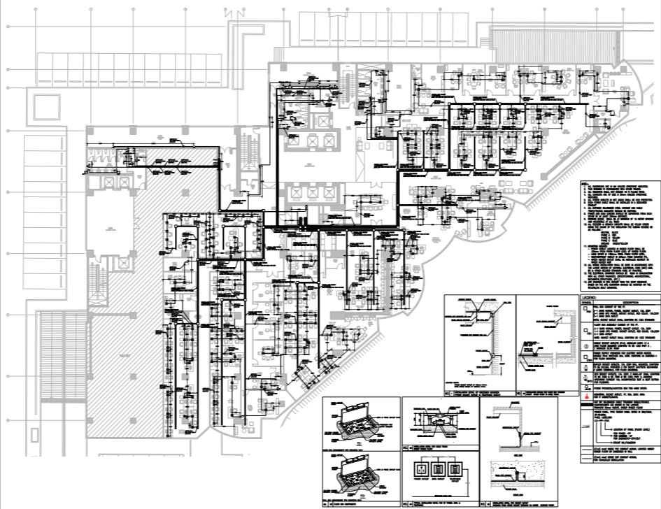
Commercial building plan detail with the normal power layout.
Description
Commercial building plan detail with the normal power layout.in this layout, it includes different types of installation detail. Office building floor plan view and design plan layout detail with dimensions detail, area detail, specification detail etc.
Uploaded by:

