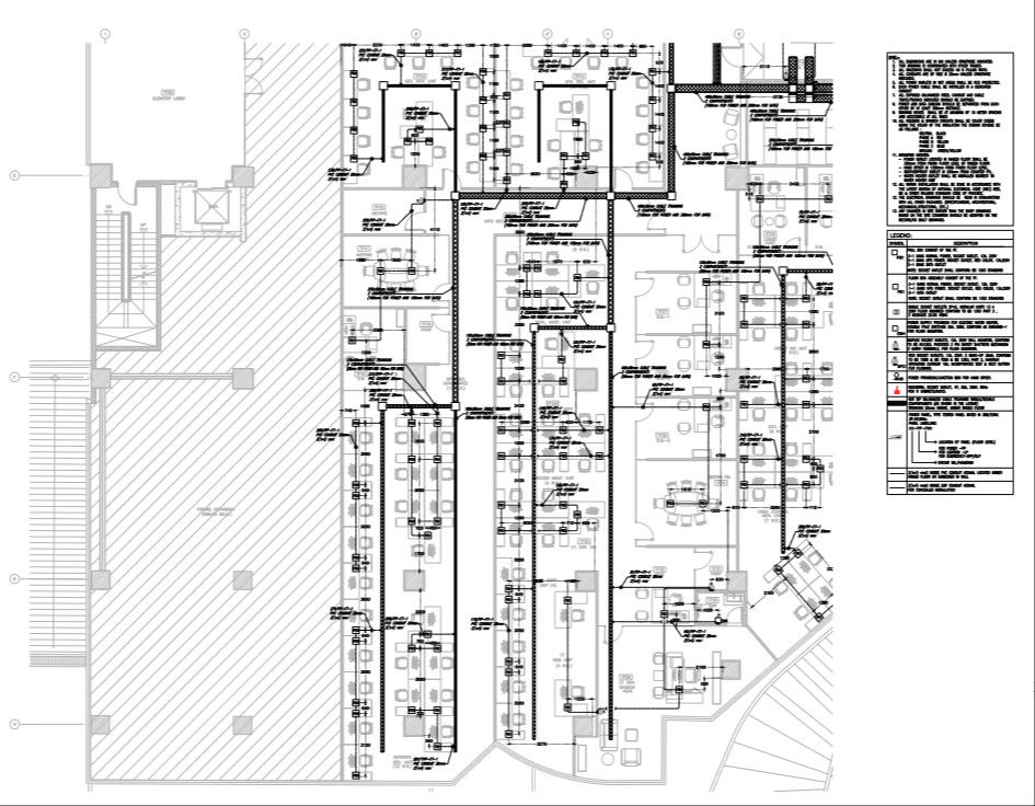
Normal power layout of a building.
Description
Normal power layout of a building. With detail description .including all wiring and installation detail. Includes all detail related power outlet, industrial socket detail with measurements and levels. Legends and description Is also there in drawing.
Uploaded by:

