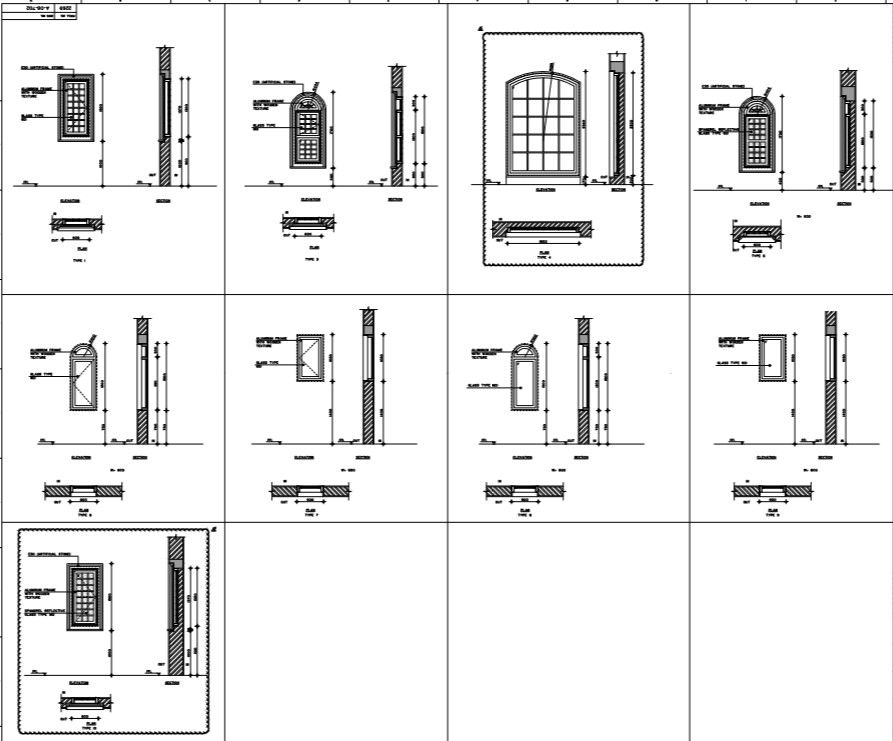
Different types of window detail with its plan, section and elevation.
Description
Different types of window detail with its plan, section and elevation. Working drawing of different types of window and detail of aluminium texture with wooden frame, types of glass and its description, artificial stone. Height and width detail in plan, section and elevation.
File Type:
File Size:
316 KB
Category::
Dwg Cad Blocks
Sub Category::
Windows And Doors Dwg Blocks
type:
Free
Uploaded by:

