LOGIN
HOME
CATEGORIES
UPLOAD FILE
PRICING
HOUSE PLAN
ABOUT US
CONTACT US
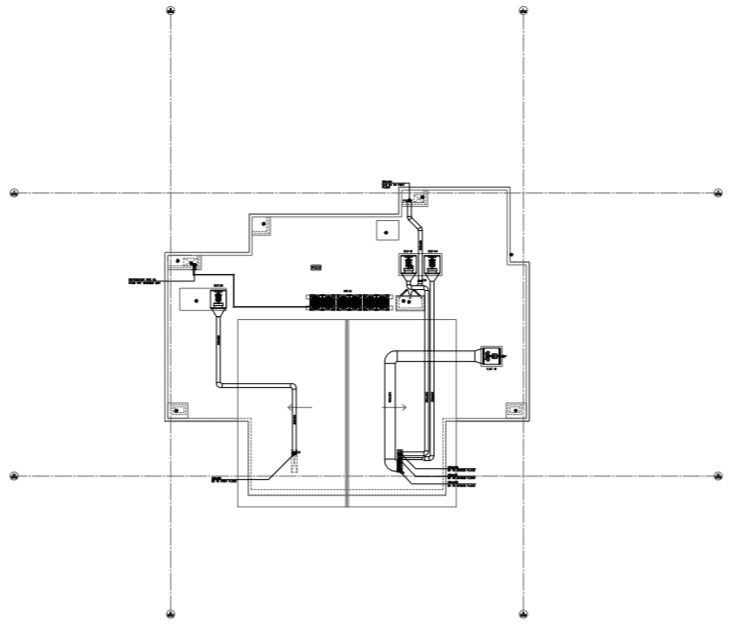
Roof floor plan HVAC work detail
Home
Categories
Details
Construction Details
Roof floor plan HVAC work detail
Uploaded by:
Vaas
View Profile
View Profile
Description
Roof floor plan HVAC work detail. Detail of Exhaust fan, width, dia, length, detail of junction dn to the ground floor with section line and measurement.
File Type:
PDF
File Size:
144 KB
Category::
Details
Sub Category::
Construction Details
type:
Gold
Uploaded by:
Vaas
View Profile
Download
Add to libary
find Latest
Related
Files