Building ground floor plan with fire alarm system detail.
Description
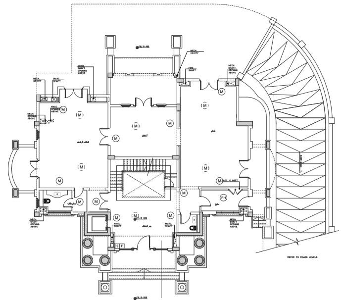
Building ground floor plan with fire alarm system detail. All detail of fire shaft, fire vent, interface with door controller, interface with firefighting system. Detail plan with all measurements and description.
Uploaded by:

