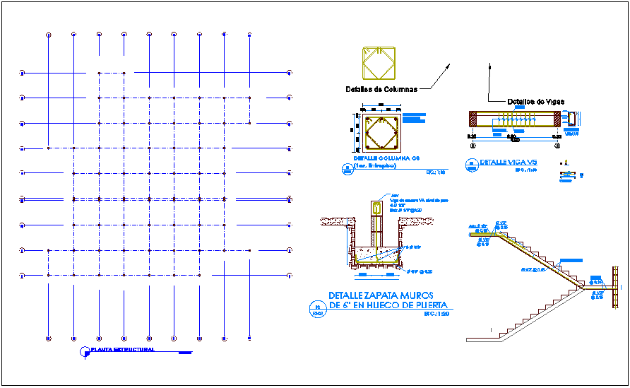
Structural plan of second floor with detail for cardiology hospital dwg file
Description
Structural plan of second floor with detail for cardiology hospital dwg file in plan with view of area distribution,column view with its mounting position and column detail view
with necessary dimension.
Uploaded by:

