Installation detail of firm alarm system.
Description
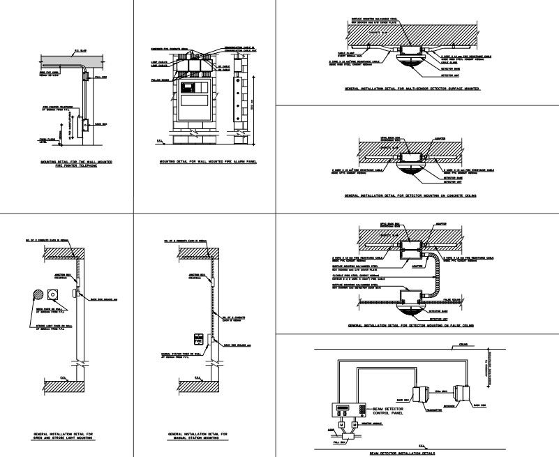
Installation detail of firm alarm system. Mounting detail for the wall mounted fire fighter telephone, mounting detail for wall mounted fire alarm panel, general installation detail for light mounting and manual station mounting, detail of multi-sensor detector surface mounted,etc.
Uploaded by:

