General installation detail of public address system.
Description
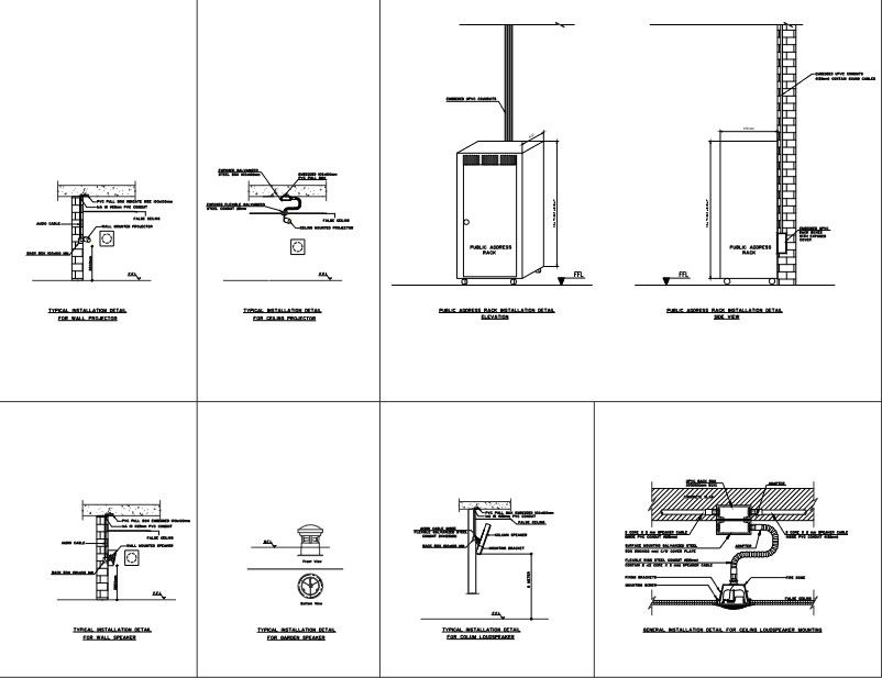
General installation detail of public address system. Different types of detail with the plan, section and its labelling and size. typical installation detail for wall projector, typical installation detail for ceiling projector, public address rack installation detail elevation, etc detail.
Uploaded by:

