Installation detail of structured cabling detail,
Description
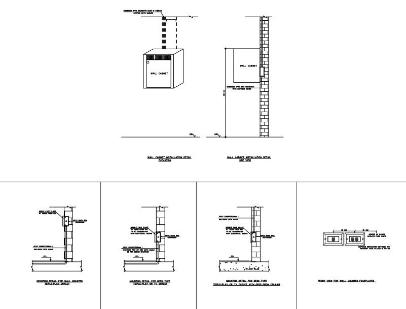
Installation detail of structured cabling detail, plan elevation and section of different installation detail.wall cabinet installation detail elevation and side view, mounting detail for wall mounted teiple –play outlet, desk type or t.v detail outlet, t,v outlet with feed from ceiling.
Uploaded by:

