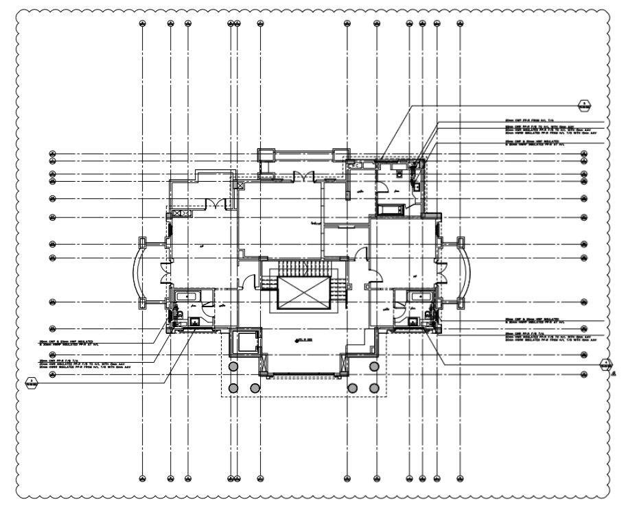
Villa floor plan with detail of water supply system.
Description
Villa floor plan with detail of water supply system. detail plan with dimensions ,levels and other detail.hot water circulation pump control panel and electric water heater. Diameter and size of of pipe and tank.
Uploaded by:

