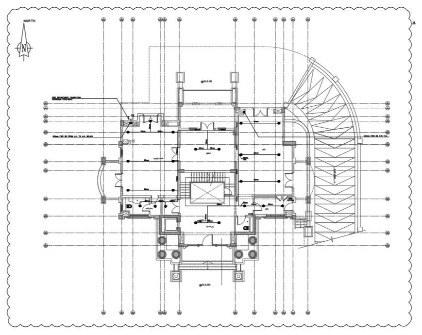
Ground floor plan with fire protection system

Ground floor plan with fire protection system
Profile

Uploaded by:

Vaas

Description
Ground floor plan with fire protection system . drawing with the fire protection system symbols and abbreviations .detail plan with dimensions , levels and other detail.
Profile

Uploaded by:

Vaas

find Latest

Related Files

WhatsApp Chat