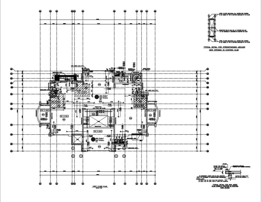
First floor demolition and strengthening plan of villa.
Description
First floor demolition and strengthing plan of the villa. structure detail plan and section of existing structure ad typical detail for a new added slab, dowels, fixation, in existing edge beams.
File Type:
File Size:
358 KB
Category::
Structure
Sub Category::
Section Plan CAD Blocks & DWG Drawing Models
type:
Free
Uploaded by:

