Supermarket
Description
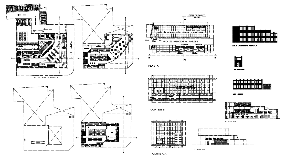
Super Market Design and Elevation dwg file. Super Market Design and Elevation that includes building front elevation, road map, entry gate, checking counter, interior counter details, wall construction, column and beam details and much more of super market design.
Uploaded by:
