LOGIN
HOME
CATEGORIES
UPLOAD FILE
PRICING
HOUSE PLAN
ABOUT US
CONTACT US
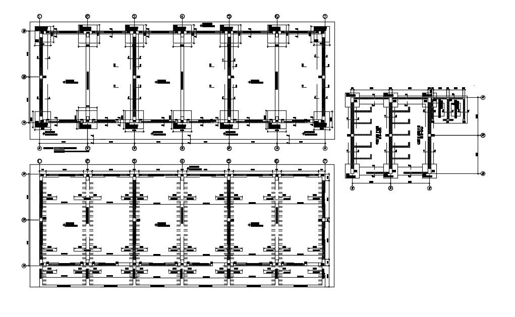
Structural Beam Design In AutoCAD File
Home
Categories
Details
Structural Steel Drawings
Structural Beam Design In AutoCAD File
Uploaded by:
Poonam
View Profile
View Profile
Description
Structural Beam Design In AutoCAD File which shows the beam design, concrete block details.
File Type:
DWG
File Size:
2.7 MB
Category::
Details
Sub Category::
Structural Steel Drawings
type:
Gold
Uploaded by:
Poonam
View Profile
Download
Add to libary
find Latest
Related
Files