LOGIN
HOME
CATEGORIES
UPLOAD FILE
PRICING
HOUSE PLAN
ABOUT US
CONTACT US
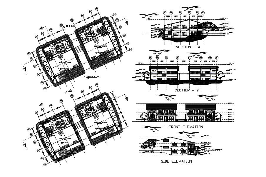
Town Design Section Elevation In DWG File
Home
Categories
Urban Design
Town Design And Planning
Town Design Section Elevation In DWG File
Uploaded by:
Vaas
View Profile
View Profile
Description
Town Design Section Elevation In DWG File which shows the details of section and elevation, floor plan, centre line drawings, furniture details.
File Type:
DWG
File Size:
3.6 MB
Category::
Urban Design
Sub Category::
Town Design And Planning
type:
Gold
Uploaded by:
Vaas
View Profile
Download
Add to libary
find Latest
Related
Files