LOGIN
HOME
CATEGORIES
UPLOAD FILE
PRICING
HOUSE PLAN
ABOUT US
CONTACT US
Renault Car Dealer Dwg file
Home
Categories
Dwg Cad Blocks
Vehicle CAD Blocks
Renault Car Dealer Dwg file
Uploaded by:
Poonam
View Profile
View Profile
Description
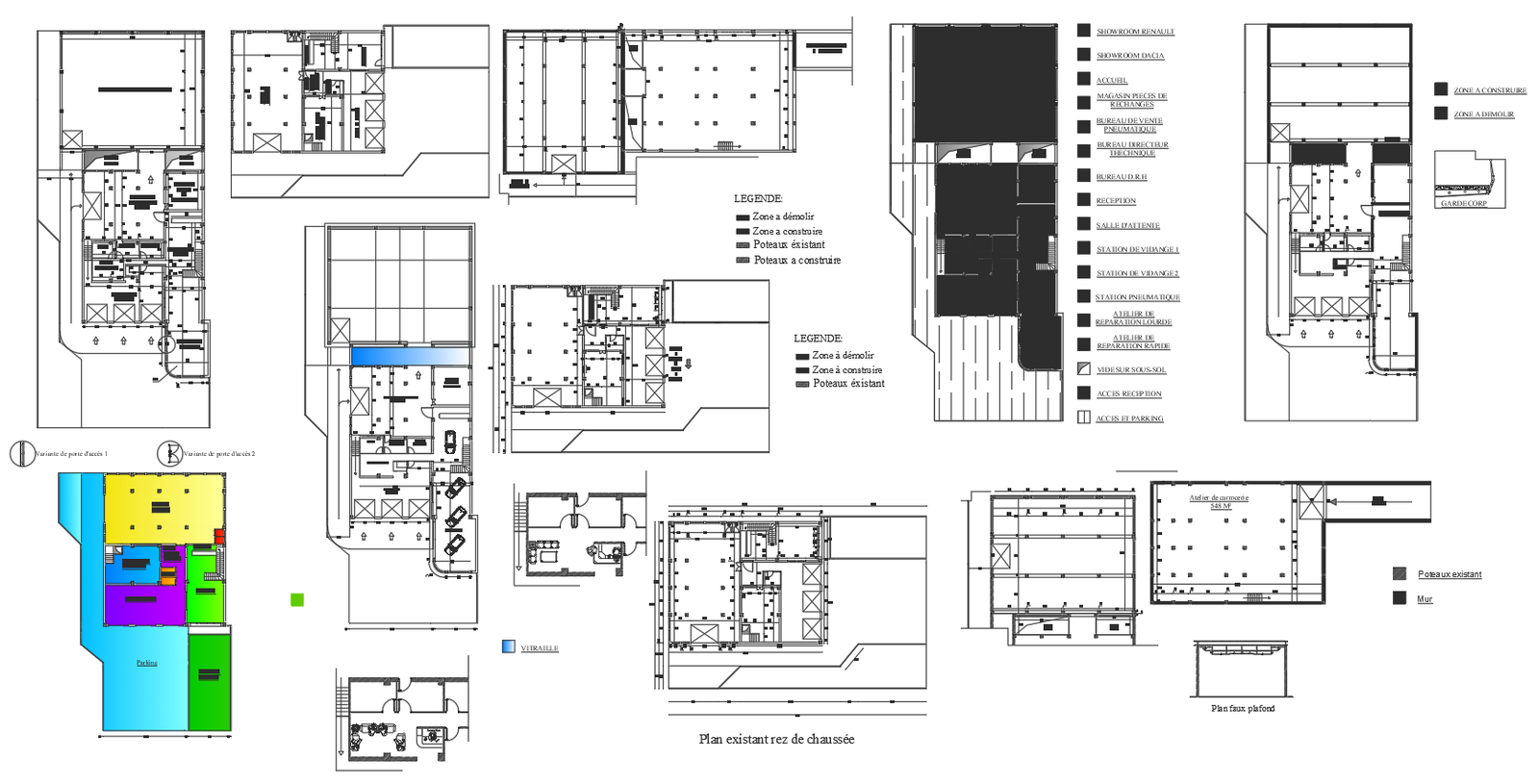
Renault Car Dealer Dwg file. Structural plan, including section line detail, dimension detail, naming detail, leveling detail, etc.
File Type:
DWG
File Size:
1.6 MB
Category::
Dwg Cad Blocks
Sub Category::
Vehicle CAD Blocks
type:
Free
Uploaded by:
Poonam
View Profile
Download
Add to libary
find Latest
Related
Files